1 & 2 BHK Premium Apartments – TBPL Harikeerthanam
Enquire Now
Status
Piling Work Started
Project Type
1 & 2 BHK Apartments
Location
Guruvayur, Thrissur
Apartments
50
Apartment Size
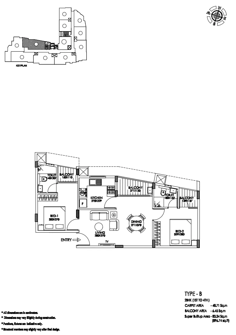
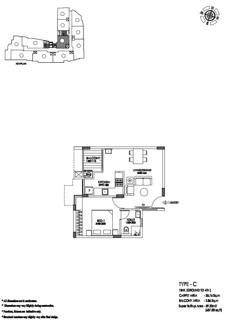
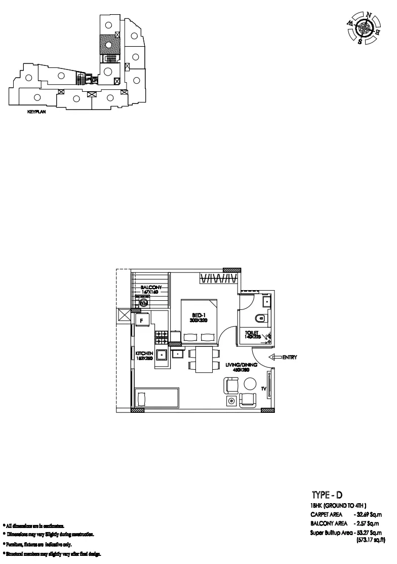
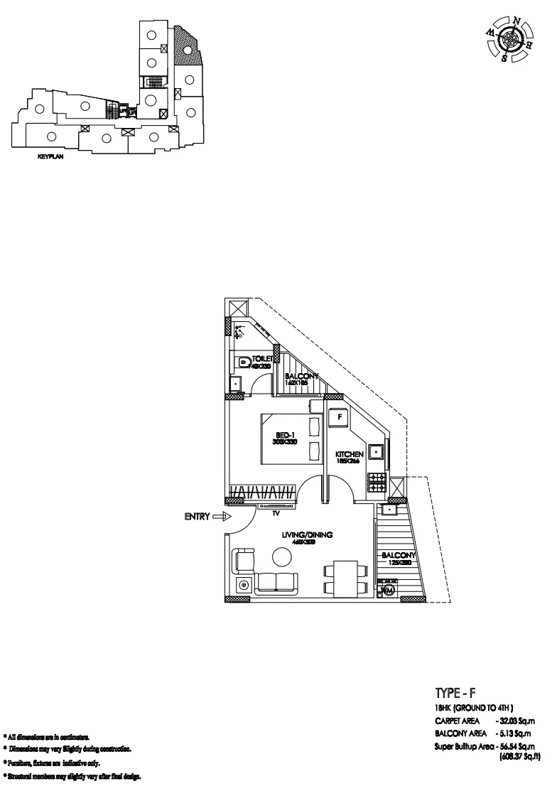
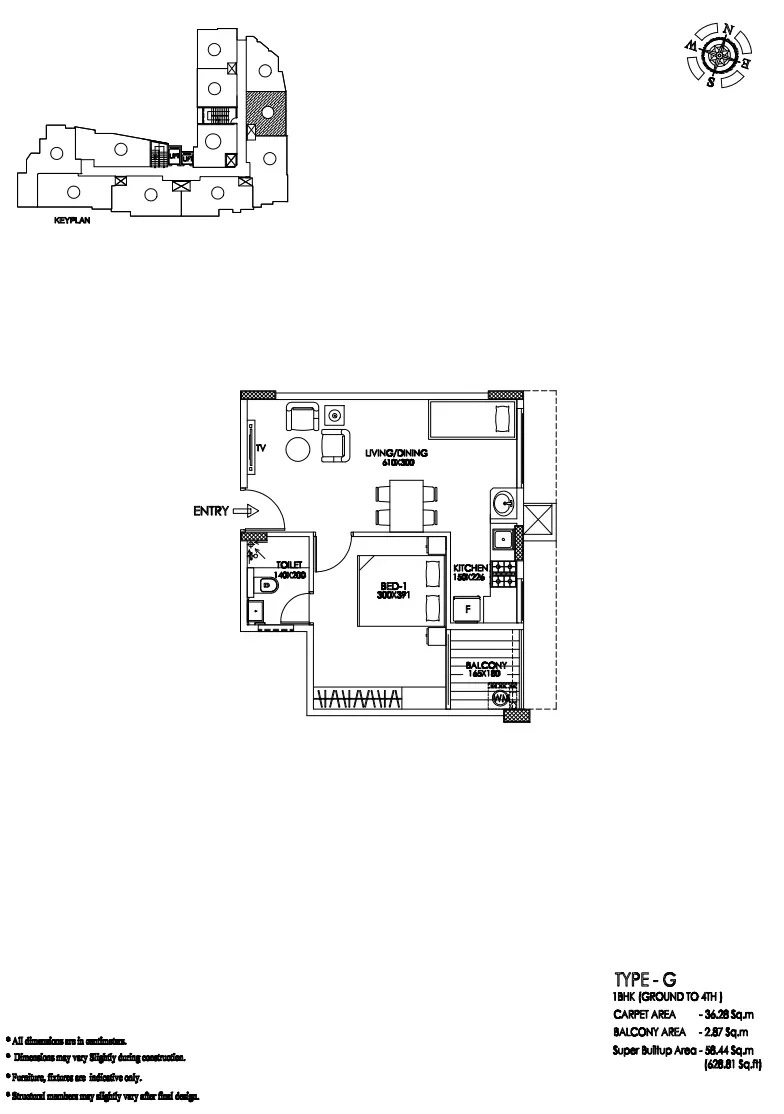
1BHK: 573 - 636.75 sq.ft
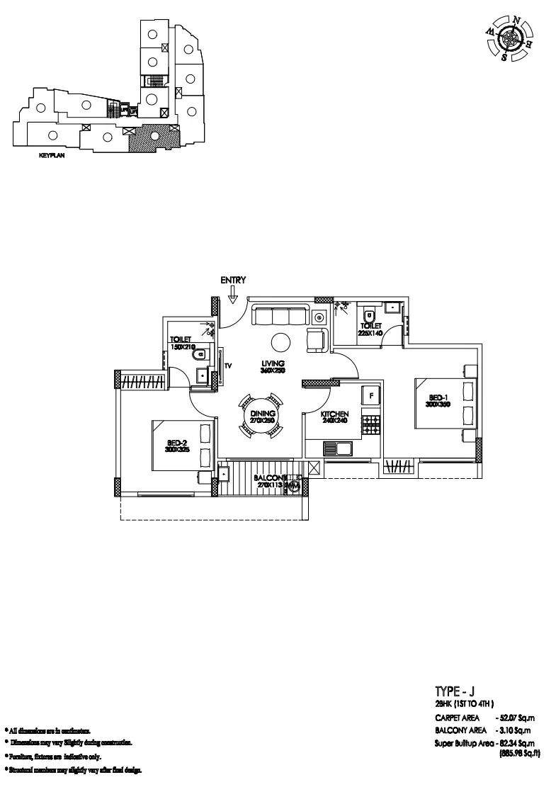
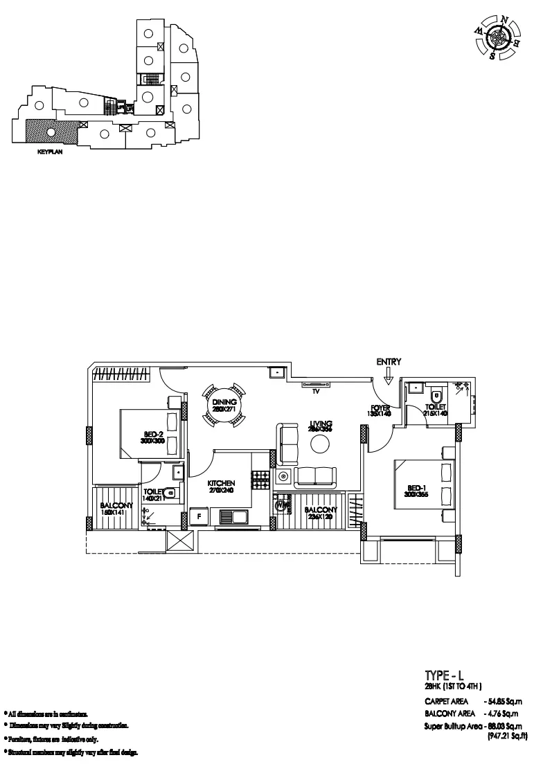
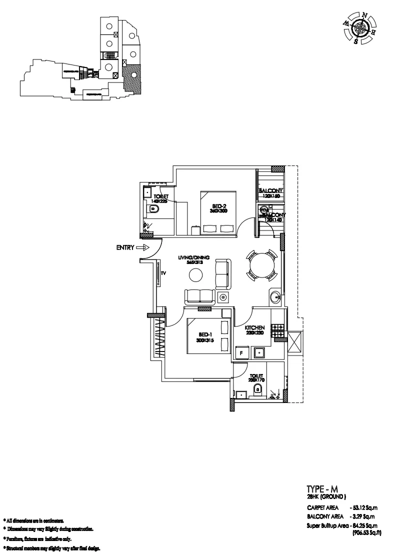
2 BHK: 885.62 - 997.36 sq.ft
Land Area
33.85
Registration Number
K-RERA/PRJ/TSR/144/2025

TBPL HARIKEERTHANAM - Where Divine Living Meets Modern Comfort
TBPL Homes, one of the top builders in Guruvayur, proudly presents its 59th residential project – TBPL Harikeerthanam, located in the sacred and serene temple town of Guruvayur. This landmark development marks our 14th project in Guruvayur, reflecting our deep-rooted trust and long-standing presence as one of the best builders in Guruvayur.
Spread across 33.85 cents of prime land, TBPL Harikeerthanam stands just 650 meters away from the revered Sree Krishna Temple, ideally situated off the South Ring Road. Designed with thoughtful precision, this G+4-floor project offers 50 cozy, compact, and comfortable 1 BHK and 2 BHK flats in Guruvayur, perfect for families, devotees, and retirees seeking a peaceful home near the divine abode.
- 1 BHK Apartments in Guruvayur – Saleable area ranging from 573 sq.ft to 636.75 sq.ft
- 2 BHK Flats in Guruvayur – Saleable area ranging from 885.62 sq.ft to 997.36 sq.ft
TBPL Harikeerthanam combines spiritual serenity with modern-day comforts. Its strategic location offers easy access to shops, hospitals, other important temples, private bus stations, and the Guruvayur railway station — ensuring both convenience and connectivity for its residents.
Experience a divine lifestyle wrapped in comfort and convenience with TBPL Harikeerthanam — a signature project from TBPL Homes, trusted for over three decades as one of the top and best builders in Guruvayur. Discover a home where faith and modernity coexist beautifully, giving you the perfect space to live a peaceful and blessed life near Lord Sree Guruvayurappan.
Features & amenities
Well-furnished entrance lobby
Water treatment plant
Efficient Waste management system
24 hours generator back up
On grid Solar power as per norms
Care taker room
Common toilet
CCTV camera
24 hours security
Biometric/smart card entry system
Intercom facility
Fire Fighting system
Air conditioned Yoga / meditation room
Air Conditioned multipurpose hall
Media
Project Latest Status:
Bhoomi Pooja Completed & Piling Work Started
Specifications
Foundation
RCC Framed structure with suitable foundation
Flooring
- Living, Dining and Bedrooms: Good quality Verified tile flooring for the entire area except toilet and balconies
- Kitchen: Counter top with good quality mirror polished granite, Stainless steel sink glazed tile dadoing above the counter
- Toilet & Balconies: Anti skid ceramic tile flooring.Glazed wall tile up to false ceiling for toilets
Plumbing & Sanitary
Provision for hot & cold water in toilets with branded Sanitary & CP Fittings
Fire Fighting
Fire fighting arrangements as per Kerala Fire & Rescue Department norms
Solar Power
On grid Solar power as per norms.
Painting
Wall & Ceiling: Putty with emulsion finish for walls inside the apartments. Exterior emulsion paint for external walls
Doors & Windows
- Entrance door: Designer pre-hung engineered door frame and shutter of good quality.
- Internal & Toilet doors: Engineered pre- hung door frames and shutters of good quality.
- Windows: Fully glazed Powder coated aluminum windows with grills.
- Balcony Door: Fully glazed Powder coated aluminum sliding / fixed/ openable panels with toughened glass.
Electrical
- General: Concealed conduit wiring with branded high quality FRLSH insulated copper wires , Modular switches, adequate points for light ,fan ,6A/16A plug controlled by RCBO and MCBs.
- Generator Backup: For common facilities such as lifts, common lights, pumps etc and restricted backup up to 500 watts for 1BHK flats AND 750 watts for 2BHK Flats
- AC provision: Energized provision for Split AC points in all Bedrooms
- Intercom: Intercom point in Living room connected to all flats, security, caretaker room etc.
- TV/Telephone: Provision for cable TV/telephone point in Living room.
Water Supply
- Treated ground water supply through sump and overhead tank
- Provision for KWA water connection in kitchen
Sewage Treatment Plan
As per KSPCB norms
Location
address
Key transport
Seventh Day School
1.8 km
Hi Lite Mall
2 km
Nirmala Matha School
2.6 km
Selex Mall
2.9 km
Jubilee Mission Hospital
2.3 km
Thrissur Road
3.9 km
Valarkavu Temple
800 m
Ksrtc Bus Stand
4.5 km
Railway Station
4.7 km
International Convention Center
300 m
NH 544
3.2 km
Mar Aprem Church
1.3 km
St. Sebastine Church
1.3 km
kalathode Juma Masjid
2.3 km
East Fort Jn
2.9 km
Hill Garden
700 m
Reliance Smart
2.8 km
Lourdes Church
2.6 km
Ganam Theater
950 m
Project Approved By






























